Khóa Tay nắm cửa Huy Hoàng HCP 8528
Khóa Tay nắm cửa Huy Hoàng HCP 8528
| Mã sản phẩm: | TNHCP8528 |
|---|---|
| Tình trạng: | Còn hàng |
| Giá: | 2,299,000đ |
Giao hàng
Chính hãng
Lắp đặt
Giá thành
Chi tiết
Khóa Tay Nắm Huy Hoàng HCP 8528
Đặc điểm nổi bật
-
Chất liệu Đồng Thau Mạ PVD: Tay ốp khóa được sản xuất bằng đồng vàng (đồng thau) và mạ PVD màu vàng gold cao cấp, mang lại vẻ ngoài ấn tượng, sang trọng và khả năng chống oxy hóa, chống phai màu theo thời gian.
-
An ninh Công nghệ Abus: Ổ khóa là sản phẩm của sự kết hợp công nghệ giữa Khóa Huy Hoàng và Abus (Đức), đảm bảo tiêu chuẩn an toàn cao nhất. Ổ khóa sử dụng chìa vi tính (thường là 7 bi) giúp tránh bị trùng chìa, dò chìa, rất an toàn.
-
Cấu tạo bền bỉ:
-
Then khóa: Làm bằng đồng vàng (đồng thau), có kết cấu chắc chắn, an toàn.
-
Thân khóa: Có mặt thân Inox, ốp thân thép sơn tĩnh điện đen, các chi tiết khác bên trong làm bằng tôn thép mạ Zn theo tiêu chuẩn quốc tế.
-
-
Ứng dụng: Khóa tay nắm HCP 8528 thích hợp sử dụng cho cửa gỗ cao cấp, lớn, 2 cánh.
Thông số kỹ thuật chi tiết
-
Mã sản phẩm: TNHCP8528
-
Thương hiệu: Khóa Huy Hoàng (Kết hợp công nghệ Abus)
-
Dòng sản phẩm: Khóa tay nắm (Tay gạt)
-
Màu sắc: Vàng Gold (Mạ PVD)
-
Chất liệu: Đồng thau mạ PVD (Tay ốp, Then khóa), Thân Inox/Thép mạ Zn.
-
Ổ khóa: Huy Hoàng - Abus, Chìa vi tính
-
Số chìa đi kèm: 05 chìa (Ước tính theo dòng tương đương)
-
Ứng dụng: Cửa gỗ cao cấp, lớn, 2 cánh.
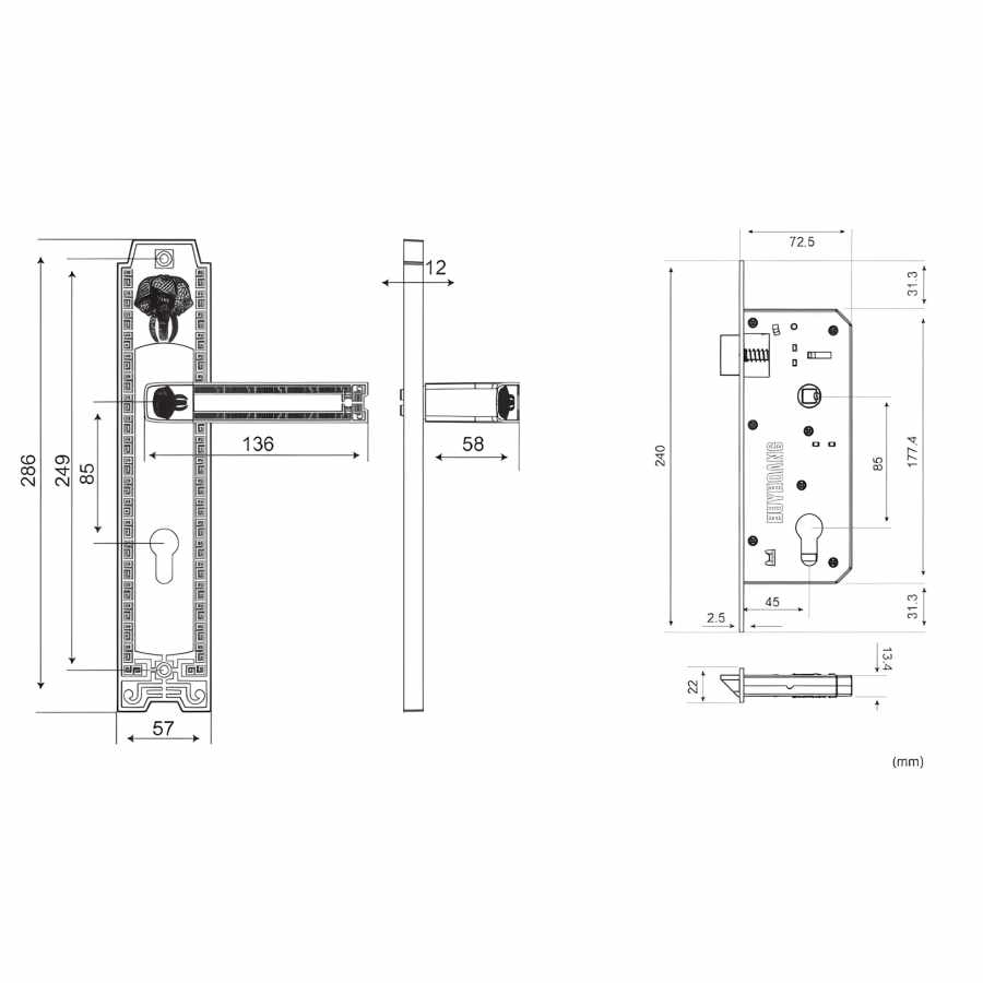
Bản vẽ kỹ thuật Khóa Tay Nắm Huy Hoàng HCP 8528

Hướng dẫn sử dụng và bảo dưỡng
-
Sử dụng: Lắp đặt ruột khóa này vào thân khóa cửa. Dùng chìa vi tính để mở khóa ngoài (chìa có thể cắm theo hai chiều). Dùng chốt vặn để khóa cửa nhanh chóng từ bên trong.
-
Bảo dưỡng: Dùng khăn mềm để lau chùi ruột khóa. Nên tra dầu bôi trơn chuyên dụng vào lõi khóa 6 tháng/lần để duy trì hoạt động trơn tru.
Liên hệ Siêu thị Nội Thất Cẩm Tú ngay hôm nay để được tư vấn giải pháp an ninh thông minh và bền bỉ!
Đánh giá
Sản phẩm cùng loại
Khóa Tay nắm cửa Huy Hoàng HCP 8526
Khóa tay nắm Huy Hoàng HCP 8526: Tay ốp Đồng Thau, màu Vàng. Thân khóa Inox, ổ khóa đồng 7 bi vi tính. Sang trọng, bền bỉ, phù hợp cho cửa gỗ lớn, 2 cánh.
2,253,900đ
Khóa Tay nắm cửa Huy Hoàng HCP 5829
Khóa tay nắm Huy Hoàng HCP 5829: Tay ốp Đồng Thau, màu Vàng. Thân khóa Inox, ổ khóa đồng 7 bi vi tính. Sang trọng, bền bỉ, phù hợp cho cửa thông phòng.
1,914,000đ
Khóa Tay nắm cửa Huy Hoàng HCP 5828
Khóa tay nắm Huy Hoàng HCP 5828: Tay ốp Đồng Thau, màu Vàng. Thân khóa Inox, ổ khóa đồng 7 bi vi tính. Sang trọng, bền bỉ, phù hợp cho cửa thông phòng.
1,914,000đ
Khóa Tay nắm cửa Huy Hoàng HCP 5826
Khóa tay nắm Huy Hoàng HCP 5826: Tay ốp Đồng Thau, màu Đồng Vàng. Thân khóa Inox, ổ khóa đồng 7 bi vi tính. Sang trọng, bền bỉ cho cửa thông phòng.
1,864,500đ
Khóa tay nắm đại Huy Hoàng HCX 8568
Khóa đại sảnh Huy Hoàng HCX 8568: Tay ốp Đồng Thau, màu Vàng Xước. Thân Inox, ổ khóa đồng, 5 chìa vi tính. Sang trọng, bền bỉ cho cửa gỗ lớn, 2-4 cánh.
3,412,000đ
Khóa tay nắm đại sảnh Huy Hoàng HCX 8566
Khóa đại sảnh Huy Hoàng HCX 8566: Tay ốp Đồng Thau, màu Vàng Xước. Thân Inox, ổ khóa đồng, 5 chìa vi tính. Sang trọng, bền bỉ cho cửa gỗ lớn, 2-4 cánh.
5,687,000đ
Khóa tay nắm đại Huy Hoàng HCX 8566
Khóa đại sảnh Huy Hoàng HCX 8566: Tay ốp Đồng Thau, màu Vàng Xước. Thân Inox, ổ khóa đồng, 5 chìa vi tính. Sang trọng, bền bỉ cho cửa gỗ lớn, 2-4 cánh.
2,418,900đ
Khóa tay nắm đại sảnh HeleH HCX 8568
Khóa đại sảnh Huy Hoàng HCX 8568: Tay ốp Đồng Thau, màu Vàng Xước. Thân Inox 304, ổ khóa đồng, 5 chìa vi tính. Sang trọng, bền bỉ cho cửa gỗ lớn, 2-4 cánh.
5,687,000đ
